Главная
Аренда помещений свободного назначения в Ростове-на-Дону и Ростовской области
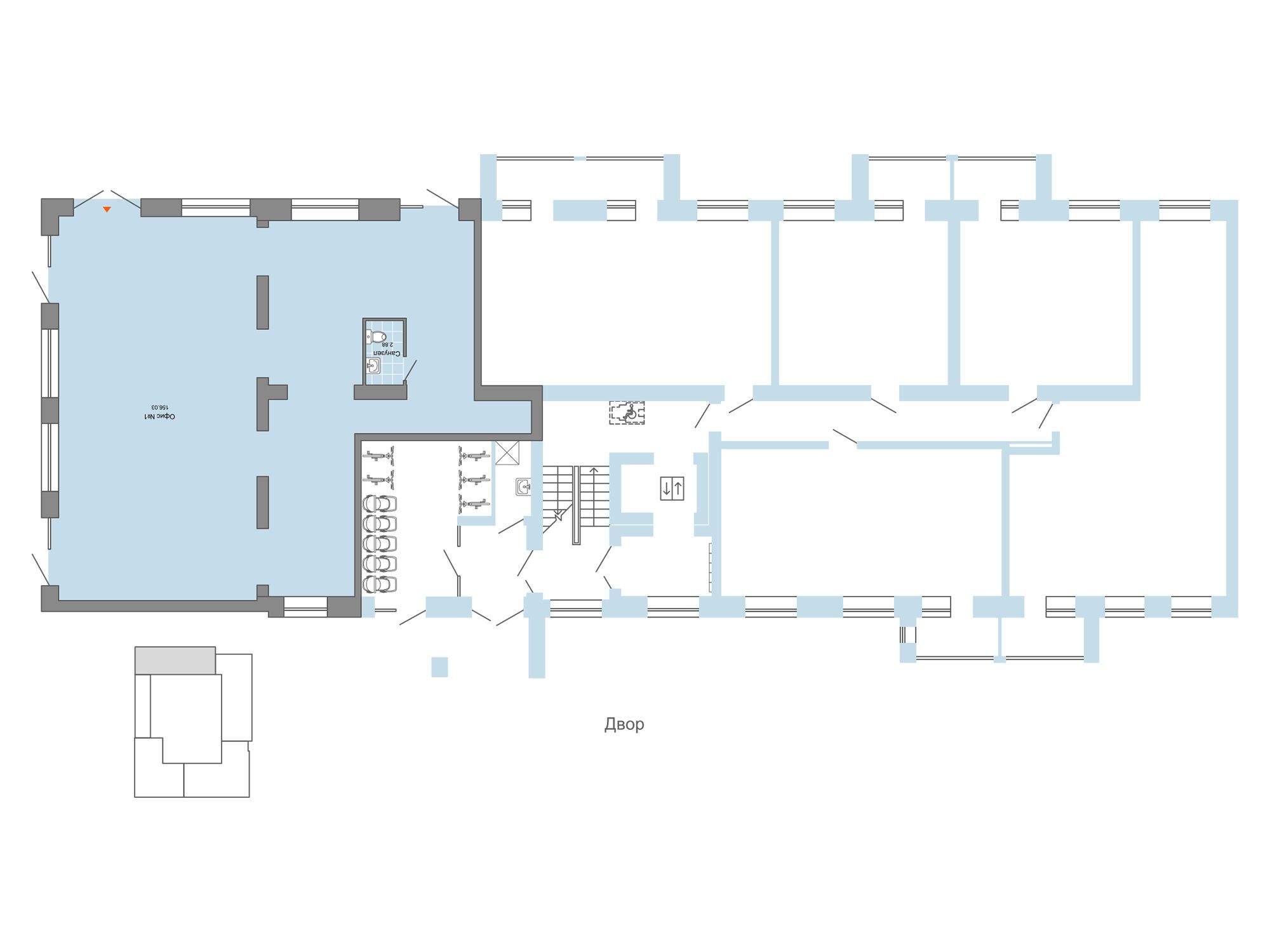
ПСН 201 м² в торговом центре
Снять ПСН 201 м² в торговом центре
ID 73072
Цена
221 000 ₽/мес
Ставка
13 194 ₽ / м² / год
Площадь
201 м²
Этаж
не указан
ИФНС
6193
г Ростов-на-Дону, ул Сержантова, д 9/27
На карте
Описание
По этому объекту вам ответит Владимирова Джаннина.г.Ростов-на-Дону, Сельмаш, густонаселенный район с интенсивным пешеходным и автомобильным трафиком, в непосредственной близости к заводу «Сельмаш». Сдаю в аренду помещение свободного назначения в торговом центре, общей площадью 201 м2. Торговый центр - новое, современное 3-х этажное здание встроенное в жилой дом. Перед фасадом торгового центра организована пешеходная прогулочная аллея. Все помещения оборудованы всеми необходимыми коммуникациями, в том числе вентиляция и лифт. В местах общего пользования выполнен современный ремонт. Ремонт помещений от арендатора. Предоставляются арендные каникулы. Все фото реальные. Подробно об объекте на сайте компании на Маралин Ру. Узнайте сколько стоит Ваша недвижимость! Бесплатная консультация и выезд специалиста.
Расположение
г Ростов-на-Дону, ул Сержантова, д 9/27
Технические характеристики
Новость дня
Все новости
Сегодня — 27 апреля, понедельник / Москва
Гастропространство «НеДетский» на 630 посадочных мест открылось в Центральном детском магазине на Лубянке.
Сегодня — 27 апреля, понедельник / Москва
"FORMA завершает продажу всех офисных помещений в бизнес-центре «ЛЕЙКС»"
Сегодня — 27 апреля, понедельник / Москва
"Прогноз: восстановление офисного рынка Москвы ожидается к 2028 году"
Сегодня — 27 апреля, понедельник / Москва
Проект строительства промышленного парка с двумя зданиями на востоке Москвы.
Сегодня — 27 апреля, понедельник / Москва
Бизнес-центр площадью 22,7 тыс. кв. м открылся в Нагатинской пойме.
Сегодня — 27 апреля, понедельник / Самарская
Недостроенный птицеводческий комплекс "Евробиотех" в Самарской области ищет покупателя
Сегодня — 27 апреля, понедельник / Москва
"Планируется строительство восьмиэтажной автостоянки с коммерческими помещениями на 465 машиномест в Новой Москве"
Сегодня — 27 апреля, понедельник / Москва
"«Монарх» приобрел участок площадью 1,36 га на территории бывшего Карачаровского механического завода"
Сегодня — 27 апреля, понедельник / Москва
"Производство растительного молока от Сварщицы Екатерины"
Сегодня — 27 апреля, понедельник / Москва
"Будущее магазинов Gate 31 под угрозой из-за финансовых трудностей"
Сегодня — 27 апреля, понедельник / Воронежская
Название статьи: "Открытие клубов Spirit Fitness площадью не менее 1,6 тыс. кв. м в Воронеже и Липецке"
24 апреля, пятница / Москва
"Продажа бывшего офиса ПСБ на Таганке на аукционе"
24 апреля, пятница / Москва
Компания Level Group планирует создать в юго-восточной части Москвы Многофункциональный комплекс с отелем, термальным центром и спортивными объектами
24 апреля, пятница / Москва
"Более миллиона квадратных метров складских помещений доступны для использования в Московском регионе"
24 апреля, пятница / Санкт-Петербург
Инвестиции в петербургскую недвижимость уменьшились на 9% за первый квартал
24 апреля, пятница / Москва
В Бутырском районе планируют построить бизнес-центр с амфитеатром.
24 апреля, пятница / Москва
"ГК «Калашников» приобрела часть акций десяти швейных фабрик"
24 апреля, пятница / Москва
"«Восток Инвестиции» приобрел долю в 20% компании Tasty Coffee"
24 апреля, пятница / Москва
Магазин «М.Косметик» открыл свой первый филиал в Краснодарском крае, специализирующийся на товарах для дома.
24 апреля, пятница / Москва
В Тверском районе Москвы планируется создание дворцово-садового комплекса с водоемом рядом с жилым домом.